Bilocale al piano terra con giardinetto

In affitto
Soiano del Lago - Via Trevisago
550 €
2 locali
Categoria
68
m2
2
Locali
1
Camere
1
Bagni
1
Posti auto
Descrizione
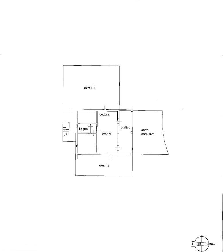
In tranquilla zona residenziale, affittiamo per 1 ANNO un bilocale al piano terra con portico, giardinetto privato ed ingresso indipendente. L'appartamento è dotato di una camera da letto e di un comodo ripostiglio/guardaroba. Vi è inoltre un posto auto scoperto oltre ad un parcheggio comunale proprio di fronte all'abitazione.

- Non sono ammessi animali.

- Il contratto è di natura transitoria della durata di 1 ANNO non rinnovabile e senza possibilità di portare la residenza.

- Si richiedono le le solite credenziali, CUD o dichiarazione dei redditi, ultime tre buste paghe e ultime tre ricevute di pagamento in caso di precedente locazione.
Caratteristiche principali
Codice:
A000104
Città:
Soiano del Lago
Categoria:
2 locali
Locali:
2
Camere:
1
Bagni:
1
Mq:
68
Posti auto:
1
Mq Giardino:
40
Piano:
Rialzato
Anno:
1984
Classe energetica:
G
285,42 kWh/m²a
Life Style:
Friendly
Stato Immobile:
Buono
Grado:
Medio
Posizione:
Collina
Panorama:
Vista Aperta
Lati Liberi:
2
Giardino:
Privato
Arredi:
Arredato a Nuovo
Tipo Soggiorno:
Soggiorno
Tipo Cucina:
Angolo Cottura
Riscaldamento:
Autonomo
Tipo Riscaldam.:
Caldaia
Tipo Impianto:
Radiatori
Fonte Energetica:
Metano
Acqua Calda:
Autonoma
Raffrescamento:
No
Infissi:
Legno Doppio Vetro
Serramenti:
Buono
Persiana:
Oscurante Legno
Pavim. Giorno:
Ceramica
Pavim. Notte:
Ceramica
Pavim. Cucina:
Ceramica
Pavim. Bagno:
Ceramica
Cauzione:
Tre Mesi
Canoni Anticipati:
Un Mese
Tipo Contratto:
Annuale
Accesso Disabili:
Nessuna Barriera
Accesso interno disabili:
Non accessibile
Tipo Registr.:
Cedolare Secca
Accessori
Doppi Vetri
No Animali
Passaggio Pedonale
Mappa
Distanze
Posizione
Centro1,5 km
Lago3 km
Altri servizi
Banca1 km
Chiesa1,5 km
Farmacia1,5 km
Video
Qr Code
Cookie preference